Színek: FEHÉR RAL 9010, EZÜST RAL 9006, EZÜST RAL 9007, BARNA RAL 8014, ANTRACIT - durva felület RAL 7016
Panel: sima felület, panelmintázat CLASIC, FINAL, ACTUAL (woodgrain), LUXURY
Panel színe: belül mindig fehér, kívül:
CLASIC - fehér RAL 9010, ezüst RAL 9007, antracit RAL 7016
ACTUAL - fehér RAL 9010, barna RAL 8014 (woodgrain)
LUXURY - ezüst RAL 9006
FINAL - fehér RAL 9010, antracit RAL 7016 Konstrukciók: vezetősínek
Vasalat: standard, strip
Működtetés: manuális
Biztonsági elemek: súlykiegyenlítő rugó, leesés elleni védelemmel (rugószakadás esetén)
Kiegészítők: kétoldalas műanyag fogantyú - fekete (csak kézi működtetés esetén), perforált szerelősín profil 30x30 mm 3 fm - 1 db
OMEGA MEREVÍTŐ PROFILOK
Selo: áthidaló profil szigeteléssel (átlapolt tömítő profil nélkül gyártható - ECO típus)
Panel színek: panel bevonat renolit fóliával (csak egy oldalon) - csak a CLASIC panelnél (58 színárnyalat, színminta szerint), festés RAL színárnyalatokra (csak egyik oldalon)
Felső és alsó alumínium léc: renolit színek vagy RAL színárnyalat
Vasalat: csökkentett vagy növelt magasságú, szemöldökfal nélküli, szemöldökfalas kivitel oldalfal nélkül
Kiegészítők: átjáró ajtó tartozékokkal, ablakok, gömb fogantyús kulcsos zár, belső blokkoló retesz, szerelősín profil, hátsó összekötő C-profil
Működtetés: motoros működtetés kapcsolóval vagy távirányítóval, motor tartozékok
Panel: sima felület, panelmintázat CLASIC, ACTUAL (woodgrain), FINAL, LUXURY
Panel színe: belül mindig fehér, kívül:
CLASIC - arany tölgy, mahagóni, sötét dió, cseresznye (fautánzat)
ACTUAL - arany tölgy
LUXURY - antracit
FINAL - arany tölgy, sötét dió
Konstrukciók: vezetősínek
Vasalat: standard, strip
Működtetés: manuális
Biztonsági elemek: súlykiegyenlítő rugó, leesés elleni védelemmel (rugószakadás esetén)
Kiegészítők: kétoldalas műanyag fogantyú - fekete (csak kézi működtetés esetén), perforált szerelősín profil 30x30 mm 3 fm - 1 db
OMEGA MEREVÍTŐ PROFILOK
Selo: áthidaló profil szigeteléssel (átlapolt tömítő profil nélkül gyártható - ECO típus)
Felső és alsó alumínium léc: renolit színek vagy RAL színárnyalat
Vasalat: csökkentett vagy növelt magasságú, szemöldökfal nélküli, szemöldökfalas kivitel oldalfal nélkül
Kiegészítők: átjáró ajtó tartozékokkal, ablakok, gömb fogantyús kulcsos zár, belső blokkoló retesz, szerelősín profil, hátsó összekötő C-profil
Működtetés: motoros működtetés kapcsolóval vagy távirányítóval, motor tartozékok

A garázskapu működési zajszintjének a csökkentését fém és műanyag alkatrészek kombinálásával, csendes kerekek használatával, a vízszintes vezetősín tartó zajszigetelésével, és szíjhajtással értük el. A kerekeken (az érintkezési kerületen), puha és kopásálló műanyag abroncs található.
Az acél pántcsap műanyag siklócsapágyban forog, így a pántnak nincs holtjátéka és nem okoz zajt a működés közben.
A fém és műanyag alkatrészek kombinálásával, csendes (műanyag abroncsú) kerekek használatával, a vízszintes vezetősín tartó zajszigetelésével, és kapu szíjhajtásos mozgatásával a kapu működési zajszintje 15 dB-lel alacsonyabb..
Garázskapu max. szélessége Calmo kivitel esetén 5000 mm.
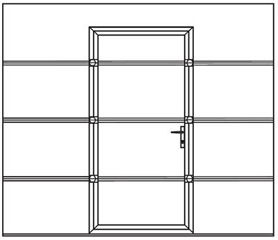
Ajtó belső mérete: 880 x 1900 mm
Küszöb magassága: 90 mm
Profil: alumínium
Profil színe: fehér, ezüst, felárért RAL színárnyalat.
Nyitás: kilincses zárszerkezet
A garázskapu merevségének és szilárdságának a megőrzése érdekében, bejárati ajtót csak minimum 2200 mm magas kapukba lehet beépíteni. Javasoljuk, hogy az ajtót a kapu közepére helyezzék el.
Amennyiben az ajtó nem középen van, akkor az ajtó széle nem lehet 500 mm-nél közelebb a kapu széléhez.
Ha a kapu magassága 2200 mm-nél kisebb, akkor az ajtó magasságát úgy változtatjuk meg, hogy az ajtó felett legalább 150 mm teli panel legyen.
Motoros működtetés esetében a nyitott bejárati ajtót érzékelő biztonsági védőkapcsoló alaptartozék.
Bejárati ajtó alkalmazása esetén a kapu szélessége maximum 4000 mm lehet!
KARA vasalat alkalmazása esetén bejárati ajtót nem lehet a garázskapuba építeni.
Ajtó belső mérete: 880 x 1850 mm (*1960 mm)
Küszöb magassága: 30 mm
Profil: alumínium
Profil színe: fekete (RAL 9005), felárért RAL színárnyalat. A műanyag alkatrészek színe csak fekete lehet.
Nyitás: kilincses zárszerkezet, ELOX - ezüst színű
A garázskapu merevségének és szilárdságának a megőrzése érdekében, bejárati ajtót csak minimum 2000 mm magas kapukba lehet beépíteni. Javasoljuk, hogy az ajtót a kapu közepére helyezzék el.
Amennyiben az ajtó nem középen van, akkor az ajtó széle nem lehet 500 mm-nél közelebb a kapu széléhez.
*(az ajtó magassága 1960 mm lesz, ha az alsó panel magassága 610 mm)
Motoros működtetés esetében a nyitott bejárati ajtót érzékelő biztonsági védőkapcsoló alaptartozék.
Bejárati ajtó alkalmazása esetén a kapu szélessége maximum 4000 mm lehet!
KARA vasalat alkalmazása esetén bejárati ajtót nem lehet a garázskapuba építeni.
Minimális kapuméret: 1600 mm × 1850 mm
Maximális kapuméret: 5500 × 3000 mm (5001 - 5500 mm széles kapuk esetében a maximális magasság 2750 mm)

a függőleges vezetősín az oldalfalra van felszerelve, a kapunyílást a panelek a beltérből eltakarják, a kapunyílás kívülről teljes méretében látható.
A rendszer alapját a csökkentett magasságú vasalat képezi. A függőleges vezetősíneket profil segítségével közvetlenül a falra kell felszerelni, kívülre fedőlemez van felszegecselve. A függőleges fedőlemez színárnyalata azonos a panelek színárnyalatával. A tömítőgumi szerelése és a motor pálya szerelése a szemöldökfalra történik. A BUNKER kivitelű szekciónált garázskapuk esetében az oldalfalat is fedőlemez helyettesíti. Ezek alatt nincs szekcionált panel, illetve hőszigetelés sem. A TUNEL és BUNKER rendszerű szekcionált garázskapuk maximális szélessége 5000 mm lehet. A hátsó összekötő C-profil alaptartozék amit az ár is tartalmaz.
Ennél a vasalatnál nem lehet a külső felületre fogantyút vagy gömb zárat felszerelni! A besüllyesztett fogantyút a gyárban beépítjük. KARA vasalat használata esetén a kapuba nem lehet bejárati ajtót beépíteni.
a függőleges vezetősín az oldalfalra van felszerelve, a kapunyílást a panelek a beltérből eltakarják, a kapunyílás kívülről teljes méretében látható.
A hátsó összekötő C-profil alaptartozék, amit az ár is tartalmaz.
A rendszer alapját a csökkentett magasságú vasalat képezi. A függőleges vezetősíneket profil segítségével közvetlenül a falra kell felszerelni, kívülre fedőlemez van felszegecselve. A hiányzó szemöldökfalat takarólemez helyettesíti. A függőleges fedőlemez és a felső takarólemez színárnyalata azonos a panelek színárnyalatával. A TUNEL kivitelű szekciónált garázskapuk esetében a szemöldökfalat és az oldalfalat is fedő- és takarólemez helyettesíti. Ezek alatt nincs szekcionált panel, illetve hőszigetelés sem.
A garázskapukat RAL Classic színekkel is meg lehet vásárolni, ez összesen 213 szürkeárnyalatot tartalmaz. További információkhoz lásd Wikipédiát, vagy látogassa meg valamelyik mintatermünket, ahol rendelkezésre állnak a színválaszték katalógusok. A RAL színskála az egész világon elfogadott színárnyalat szabvány, amelyet elsősorban bel- és kültéri ipari termékek, valamint építőipari termékek színárnyalatainak a pontos meghatározásához használnak. A színskála használatának a célja: a pontos színárnyalatok betartása a gyártás során.